Stahlkonstruktionen

Wir haben langjährige Erfahrung bei der Durchführung von Konstruktionen und arbeiten nach DIN 18800 mit den vorgeschriebenen Schweißnachweisen. Unsere Konstruktionsabteilung überprüft Entwürfe Ihres Architekten auf Umsetzbarkeit und auf mögliche Optimierungen. Ihre persönlichen Skizzen setzen wir in Konstruktionspläne um. Entsprechende Änderungen werden so lange ausgeführt, bis Sie und auch wir die richtige Übereinstimmung gefunden haben. Diesen Weg beschreiten wir auch bei allen nachfolgenden Arbeitsgebieten dieses Leistungsverzeichnisses. Unsere Kunden wissen das zu schätzen!

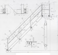
Skizze Stahltreppe
Skizze Stahlkonstruktion

Leichtmetallkonstruktionen

Ihre Idee oder die Vorstellung Ihres Architekten werden in unserer Konstruktionsabteilung auf Umsetzbarkeit und sinnvolle Fensterfront Verbesserungen überprüft. Es kommen verschiedenartige Materialien zum Einsatz. Die Verarbeitung von Edelstahl eignet sich besonders für gestalterische Objekte. Aber auch verzinkter Stahl kann durch eine Pulverbeschichtung farblich gestaltet werden.

Pfeiffer Logo

Karsten Pfeiffer

Stahl- und Metallbau

Header, Skyline, Häuser
Button zurück
Button weiter